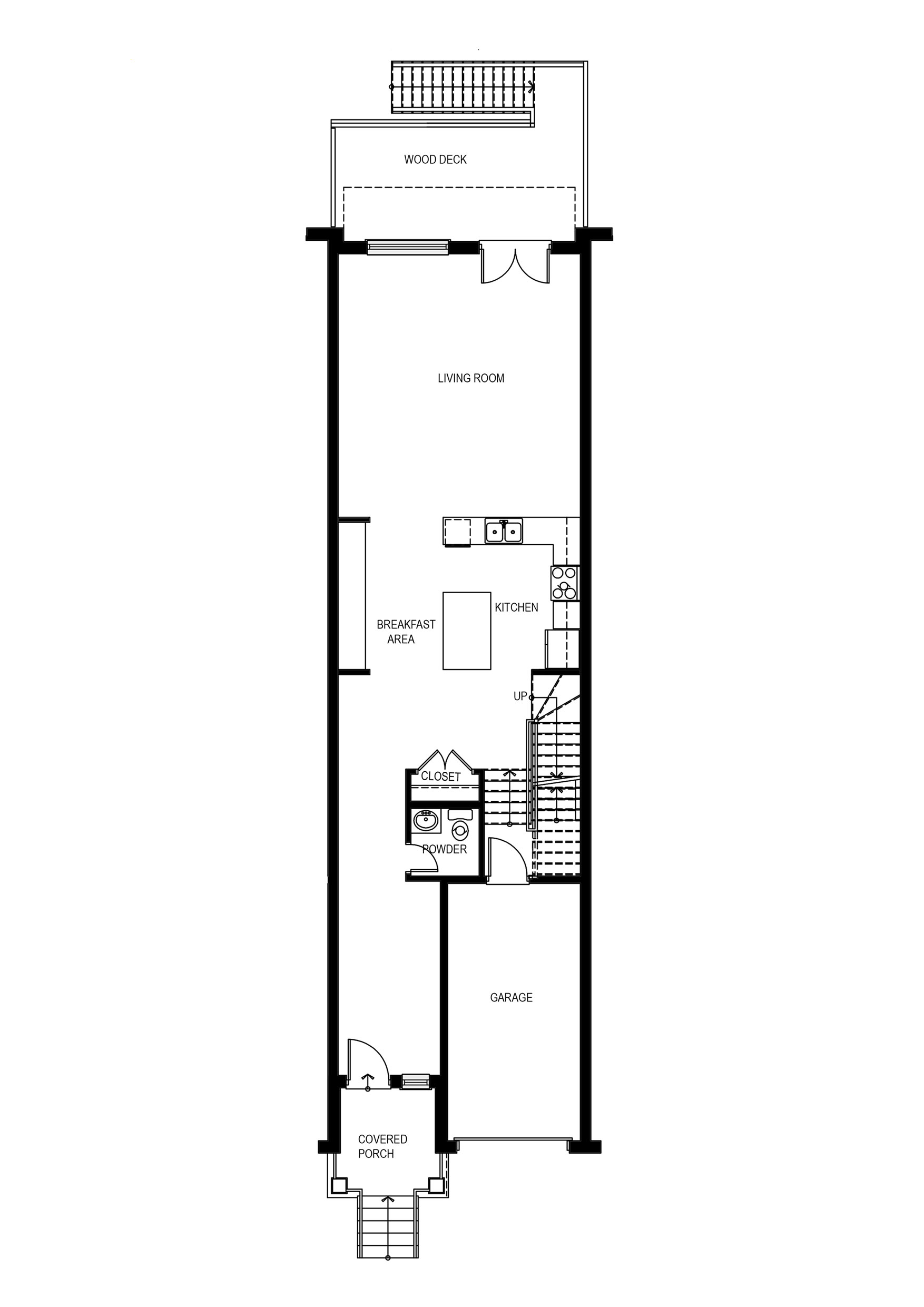
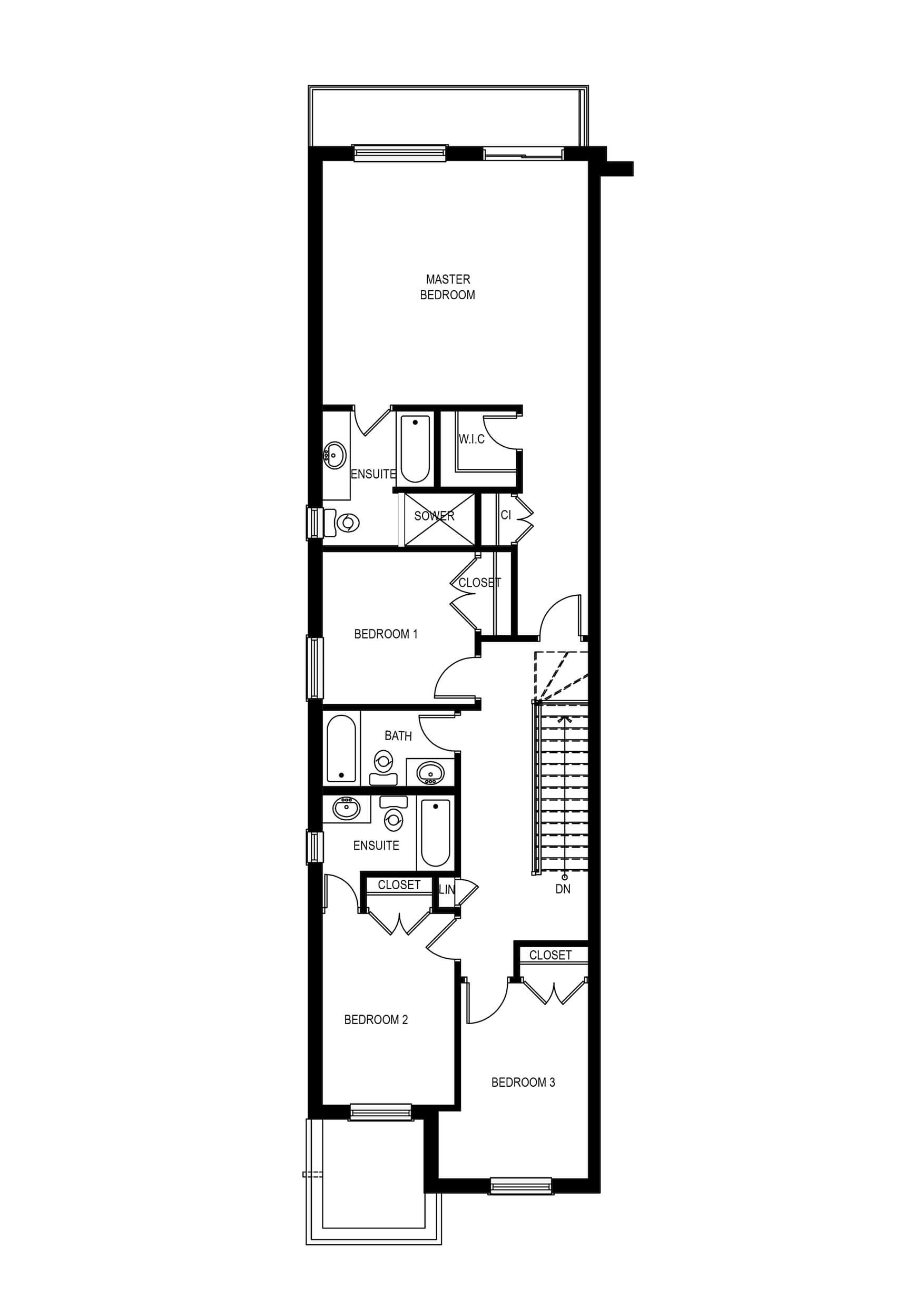
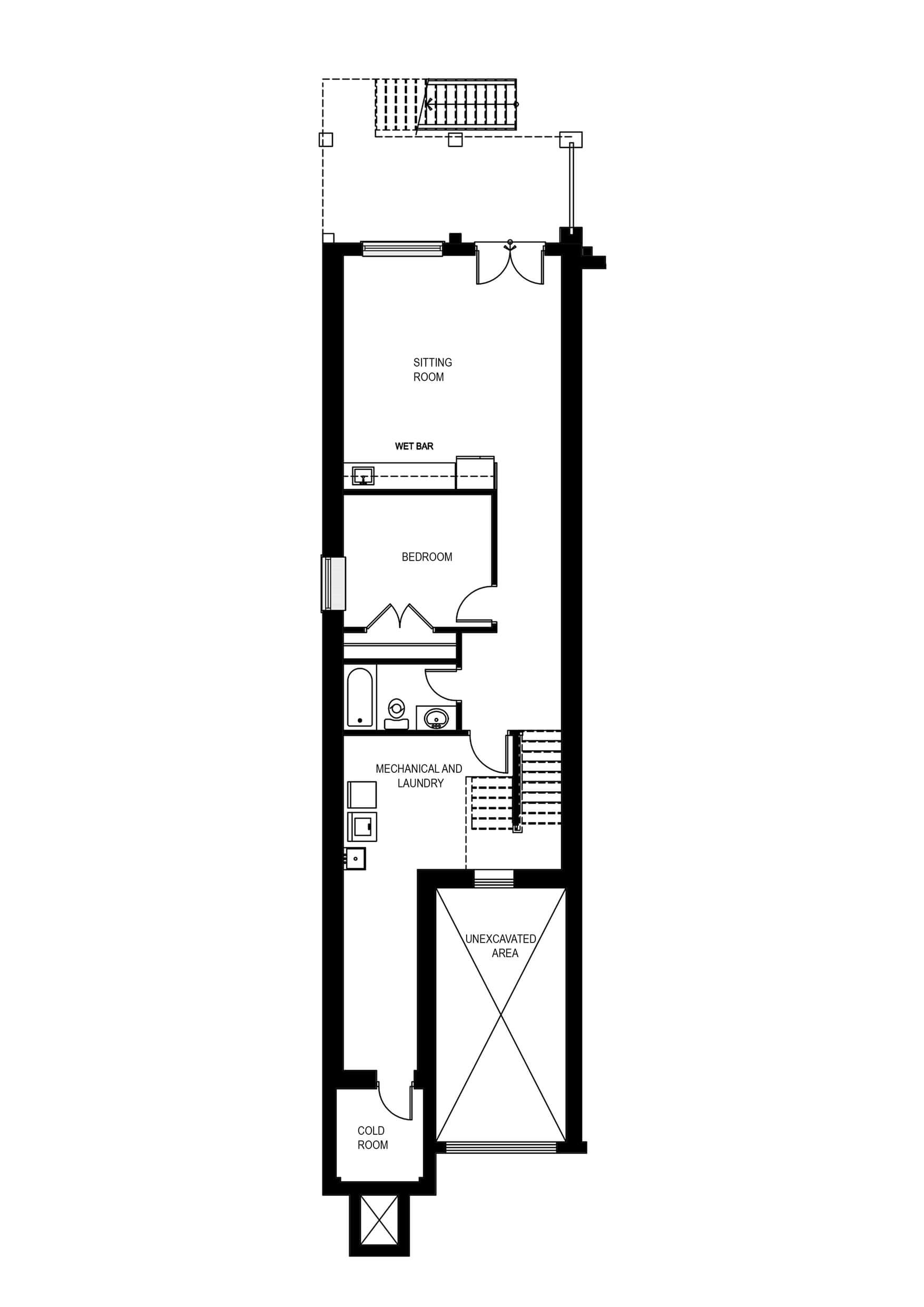
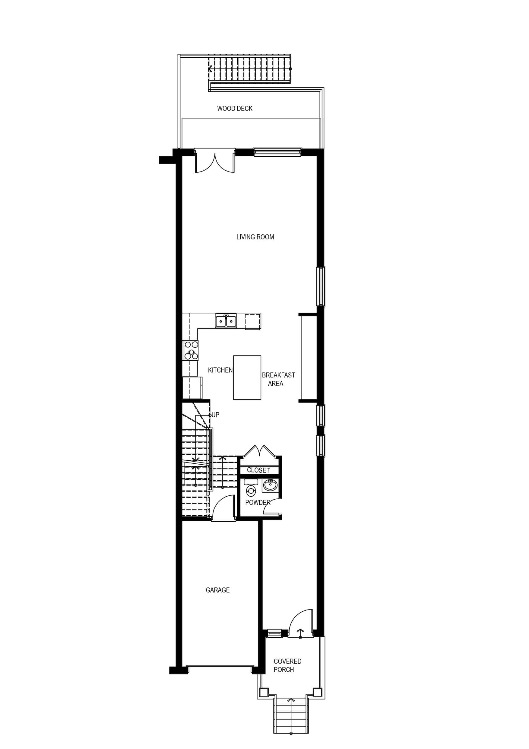
LUXURY TOWN HOMES
COMING SOON IN AJAX
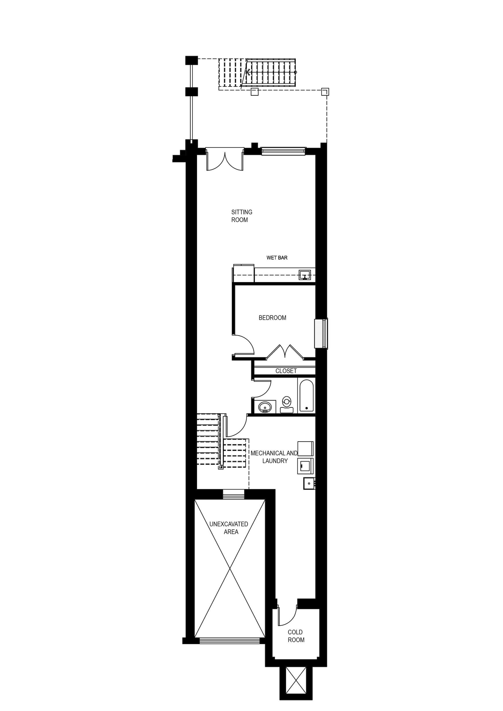
Located at intersection of 401 HWY and Salem Road in Ajax, the Galaxy Town Homes will be an exclusive community of 5 modern luxury town homes. Each will have 5 bedrooms and 4.5 bathrooms, upscale finishes and living space for you to customize.

















